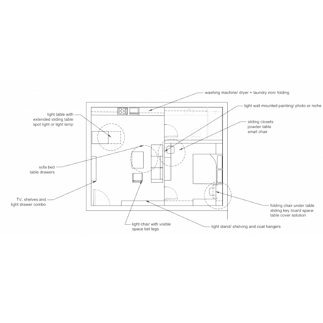
One Bedroom Apartment (for Airbnb), Budapest Downtown
New layouts were designed as part of due diligence works for clients interested in purchasing a one- bedroom apartment in Budapest.

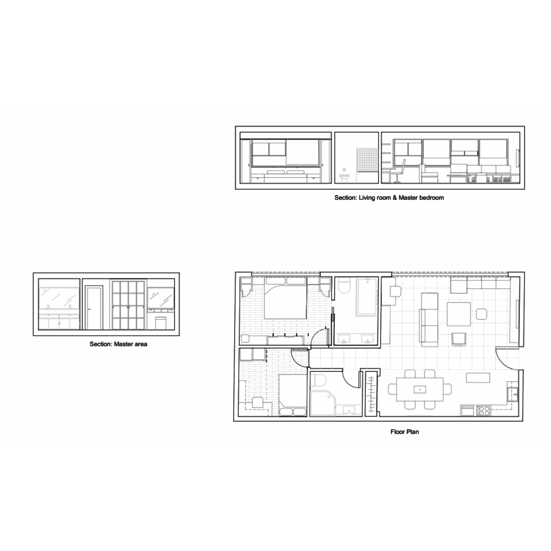
Design Advisory
Two Bedroom Apartment, Budapest Downtown
New layouts were designed as part of due diligence works for clients interested in purchasing a two- bedroom apartment in Budapest.


Suburban Villa, Budapest District 11
A conceptual design for a property owner was developed using CAD and various software to provide them with ideas on renovating a large villa in a prestigious area in Budapest. The design relied on existing structural constraints and neighborhood style. Its goal was to split the villa into two attached units, maximizing the flow between the outside and the interior and maintaining a balance between modern and traditional design and materials.

REVATI
© 2026 All rights reserved.
Services
Architecture & Design
Hospitality
Project Managment
Due Diligence
Investment management
Contact
aitaba@revativita.com
Revati
About
What we do
Projects