


74 sqm · Full Reconfiguration & Renovation
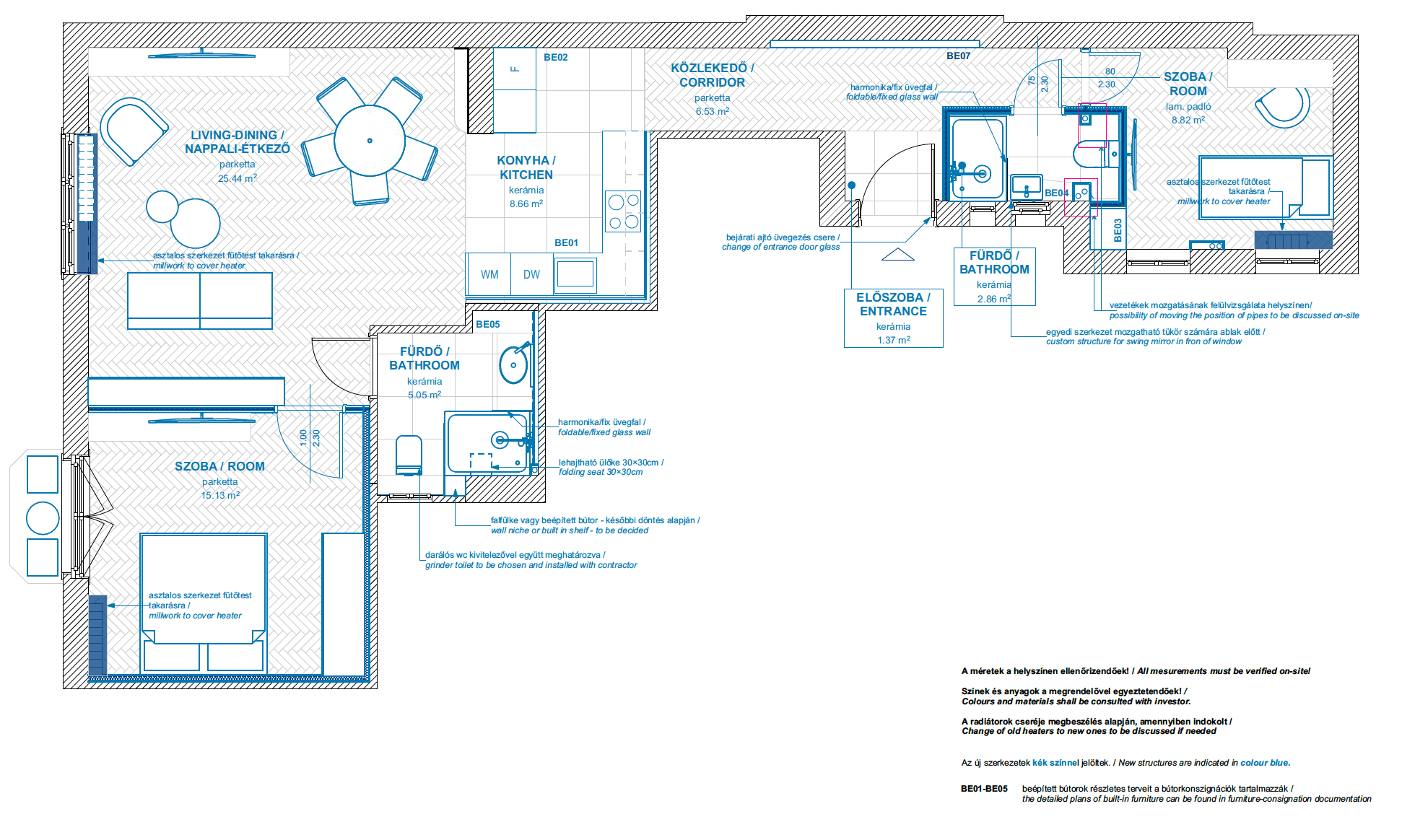
Revati transformed a protected Art Nouveau apartment into a calm, modern residence with a hospitality-ready layout. The project introduced a new bedroom, a new full bathroom, a custom kitchen, restored façade windows, and a complete electrical + MEP upgrade. Space maximization was key including built-in furniture in isolated corners and a full custom bathroom within a 2.8 meters area. The project required selecting specific materials and technologies to overcome older plumbing, structural and electrical constraints and to abide by heritage protection codes by the municipality.
Financial Summary
Acquisition: 190000 euro
Renovation: 70,000 euro
Total Investment: 260,000 euro
Estimated Value: 425,000 euro
**Target ROI: 40%
Architectural & Technical Documentation
The project’s technical sophistication is reflected in the coordinated plans and elevations, including a new lighting strategy, suspended ceiling integrations, custom carpentry, and complete service routing upgrades.
Budapest, Wesselenyi 26 — Art Nouveau Heritage Residence


Plans






After
Before



Renovation



REVATI
© 2026 All rights reserved.
Services
Architecture & Design
Hospitality
Project Managment
Due Diligence
Investment management
Contact
aitaba@revativita.com
Revati
About
What we do
Projects